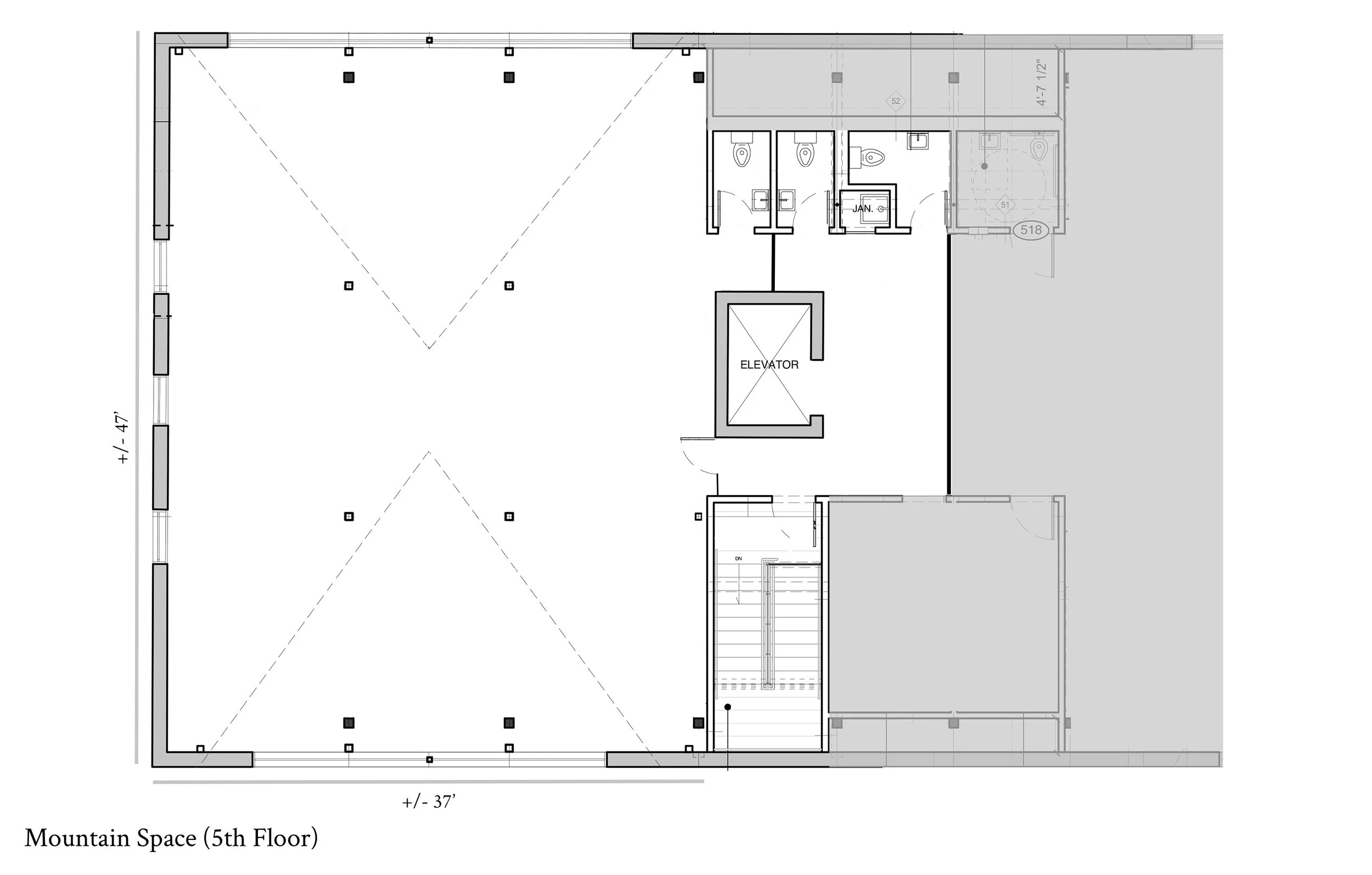
Floor Plans

Waterfront Sample Floor Plans

Bookhouse Sample Floor Plans

Plan Your Event